Стрелковая галерея, бассейн и ФОК: в Ярославле потратят пару миллиардов на две новые школы

«Агентство по строительству» мэрии Ярославля объявило аукционы для поиска подрядчиков.

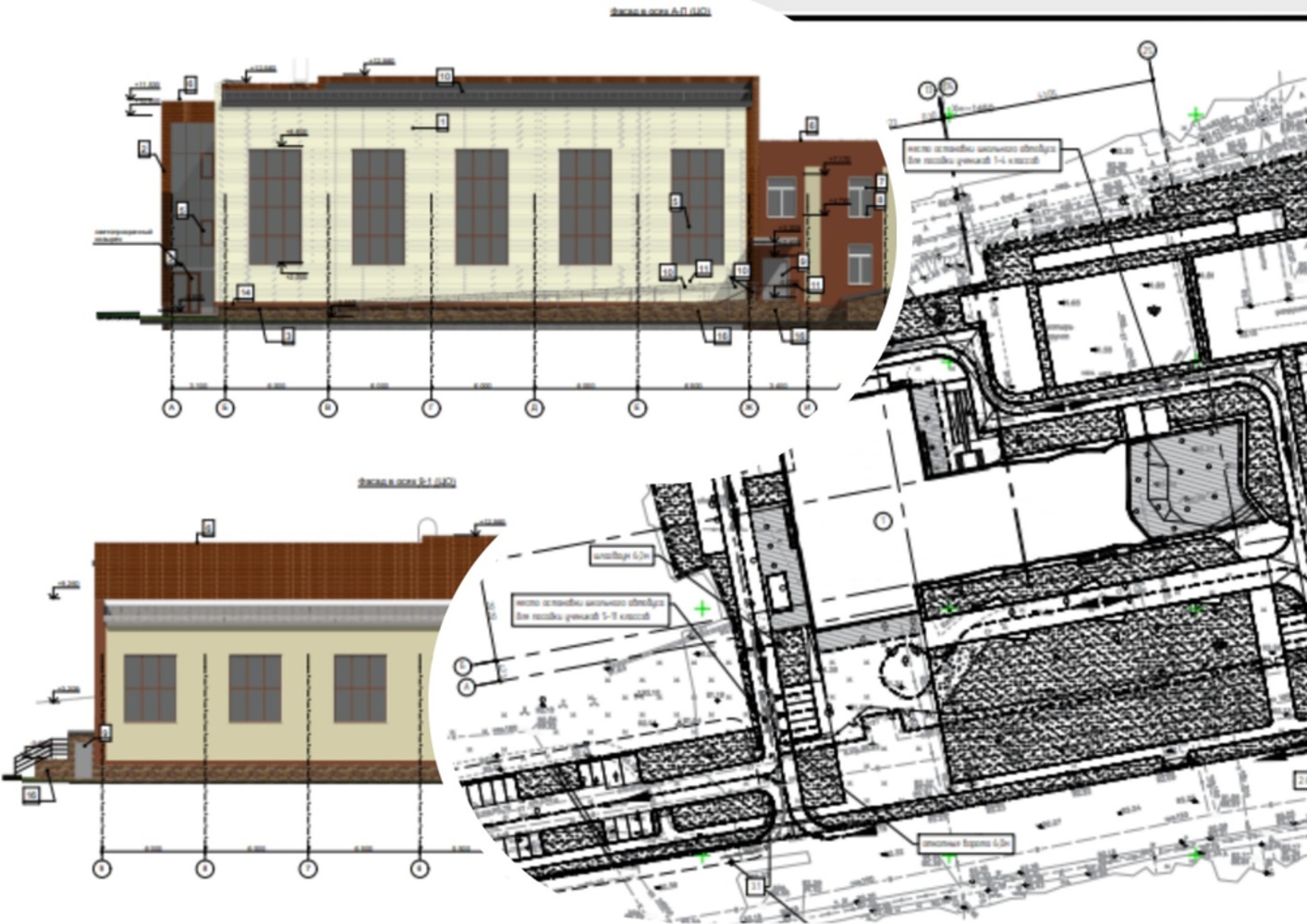
YarNews.net фото: портал госзакупок

«Агентство по строительству» мэрии Ярославля объявило аукционы для поиска подрядчиков.

17 января должна быть названа подрядная организация, которая займется строительством школы на Большой Федоровской, 62. Спустя три дня подведут итоги аукциона по поиску подрядчика для школы на Московском проспекте, 121. Пока же на портале госзакупок можно ознакомиться с проектами будущих школ.

Оба учебных заведения рассчитаны на 500 школьников. В них предусмотрено 4 надземных этажа и один подземный.   При этом школа на Московском стоит 1,12 миллиарда рублей, а учебное заведение на Большой Федоровской – 739 миллионов. Столь значительная разница связана с тем, что в учебный комплекс на Московском проспекте входит ФОК с бассейном, в подземной части здания будет своя стрелковая галерея. В школе на Московском предусмотрели также свою кухню и зал для хореографии. На Большой Федоровской отдельно сделают уличные площадки для спортивных игр.

Подготовительные работы на месте будущих строек продлятся до конца зимы наступившего года. На строительном участке на Большой Федоровской придется рубить деревья и вывозить грунт на полигон в Скоково. Фундамент на Московском проспекте планируют заливать с 25 февраля. Что касается общих сроков работ, то школу на Большой Федоровской должны построить до 4 июня 2024 года. Работы на Московском проспекте хотят завершить к 6 декабря 2024-го.


Последние новости

ТОП-10 советов по продлению срока службы частотных преобразователей

Практические рекомендации для надежной работы оборудования на долгие годы

В Ярославле дорожка на детской площадке ведет в пень

YarNews.net фото: ОНФ На проспекте Дзержинского. Эту историю опубликовали в телеграм-канале ярославского отделения ОНФ.

Программа «Комплексное развитие сельских территорий» помогает в решении проблем округа

В прошлом году переславская Детско-юношеская спортивная школа, давно требующая капитального ремонта, вошла в федеральную программу «Комплексное развитие сельских территорий».

Потребительский кредит без боли: как не стать жертвой долговой ямы

Как взять кредит с умом и не пожалеть об этом спустя пару месяцев

На этом сайте вы найдете актуальные вакансии в Верхней Пышме с предложениями работы от ведущих работодателей города

Комментарии (0)

Добавить комментарий

Ваш email не публикуется. Обязательные поля отмечены *