Территорию рядом с пивзаводом в Ярославле застроят многоэтажками

YarNews.net фото: Мэрия Ярославля Проект комплексного развития территории утвержден постановлением мэра Артема Молчанова.

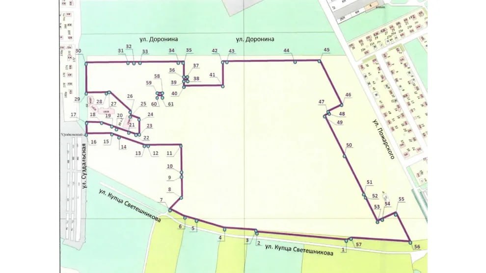
YarNews.net фото: Мэрия Ярославля

Проект комплексного развития территории утвержден постановлением мэра Артема Молчанова.

Речь идет о земле, ограниченной улицами Пожарского, Доронина, Суздальской и недавно появившейся улицей Купца Светешникова. Участок находится по соседству с пивзаводом и предприятием «Ярмолпрод». Общая площадь территории составляет 259  981 квадратный метр. КРТ предполагает возможность строительства 8-ми и 18-ти этажных домов, но точное их количество пока неизвестно. Территории понадобится проект планировки и межевания.

«Развиваемая территория расположена в границах территории, в отношении которой актуальная документация по планировке территории отсутствует. При реализации решения о комплексном развитии территории потребуется подготовка документации   по планировке территории, в соответствии с которой осуществляется ее комплексное развитие»,— отмечается в постановлении.

На территории под КРТ может таже появится три детских сада и школа на 1280 мест. На реализацию всего проекта отводится 12 лет. В ближайшее время будут организованы торги, которые определят инвестора данного земельного пространства.


Последние новости

ТОП-10 советов по продлению срока службы частотных преобразователей

Практические рекомендации для надежной работы оборудования на долгие годы

В Ярославле дорожка на детской площадке ведет в пень

YarNews.net фото: ОНФ На проспекте Дзержинского. Эту историю опубликовали в телеграм-канале ярославского отделения ОНФ.

Программа «Комплексное развитие сельских территорий» помогает в решении проблем округа

В прошлом году переславская Детско-юношеская спортивная школа, давно требующая капитального ремонта, вошла в федеральную программу «Комплексное развитие сельских территорий».

Потребительский кредит без боли: как не стать жертвой долговой ямы

Как взять кредит с умом и не пожалеть об этом спустя пару месяцев

Здесь вы найдете свежие и актуальные новости в Нижнем Новгороде, охватывающие все важные события в городе

Комментарии (0)

Добавить комментарий

Ваш email не публикуется. Обязательные поля отмечены *